Exclusive Luxury Villa in El Paraíso Alto – Modern, Spacious, and Just Minutes from Puerto Banús & Estepona Discover this stunning brand-new villa (2025) located in El Paraíso Alto, one of the most prestigious and peaceful residential areas on the Costa del Sol. This high-end property is ideally situated just steps away from all essential services, including supermarkets like Lidl and Mercadona, and is surrounded by top-tier golf courses, the renowned Bel Air tennis and padel club, and a neighborhood undergoing dynamic growth and value appreciation. Built to the highest standards with a sleek, contemporary design, the villa offers 6 spacious en-suite bedrooms, plus 3 additional guest toilets, ensuring maximum comfort and privacy for family and guests. Inside, the villa boasts two open-concept living areas, a fully equipped designer kitchen, expansive floor-to-ceiling windows that flood the space with natural light, and exquisite décor combining luxury and warmth. The outdoor area features a spectacular infinity pool with waterfall, outdoor kitchen, beautifully landscaped gardens, and generous entertainment space. The basement includes a gym, sauna, private garage, and a service room. Every detail has been meticulously crafted using the most modern and luxurious materials, creating a unique home that blends elegance with practicality. Ideally located just minutes from Puerto Banús, Marbella, and central Estepona, this villa represents an unbeatable opportunity for those seeking the best location, exceptional lifestyle, and strong investment potential on the southern coast of Spain.
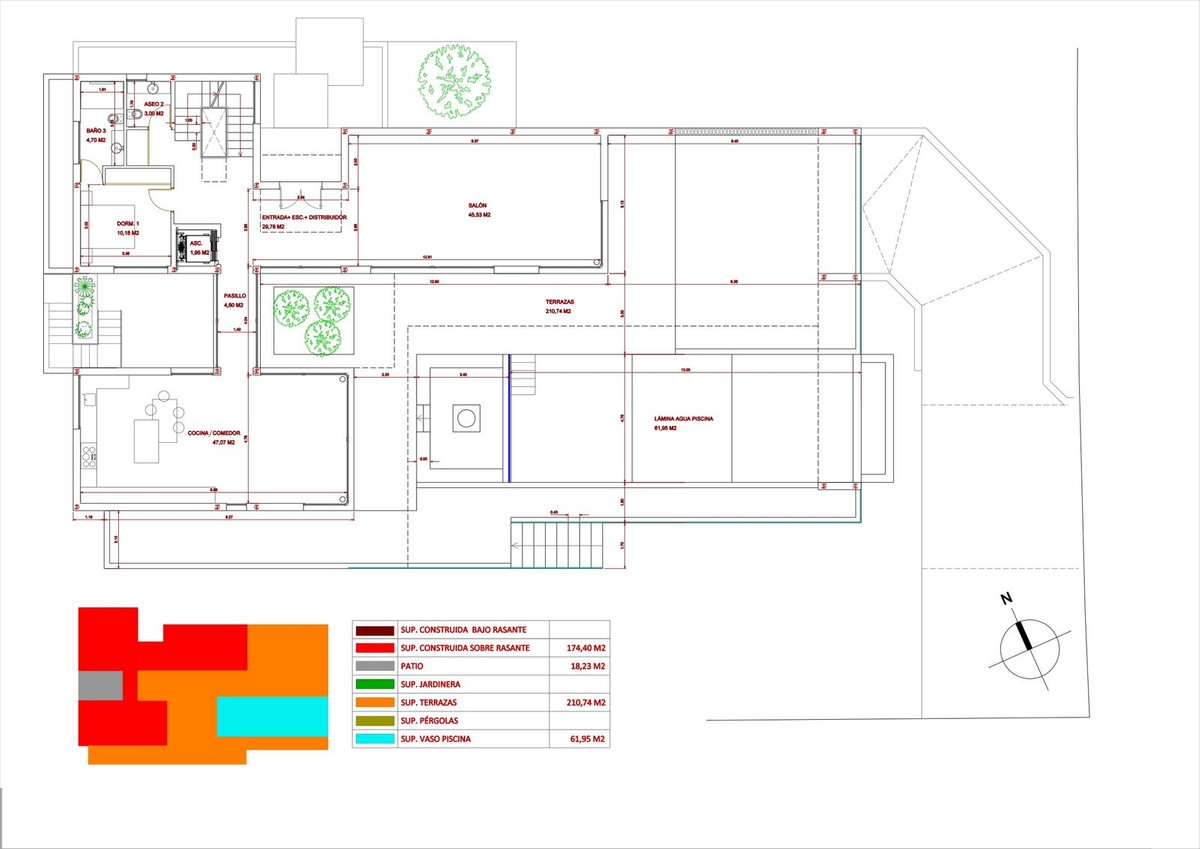
Bedrooms: 6
Bathrooms: 9
Lot size: 1283m²
Living area: 1182m²
Pool: yes
Garden: yes
Parking: yes
Cooling:
Storage:
Elevator:
Completion: 2025
Floor: Yes
| AREA |
|---|
| Setting: Close To Golf, Close To Shops, Close To Sea, Close To Town, Close To Schools, Close To Forest Orientation: South Condition: New Construction Pool: Private Climate Control: Air Conditioning, Pre Installed A/C, Hot A/C, Cold A/C Views: Garden, Pool Features: Covered Terrace, Fitted Wardrobes, Near Transport, Private Terrace, Solarium, WiFi, Gym, Storage Room, Utility Room, Ensuite Bathroom, Marble Flooring, Barbeque, Double Glazing, Near Church, Basement Furniture: Fully Furnished Kitchen: Fully Fitted Garden: Private, Landscaped, Easy Maintenance Security: Gated Complex, Entry Phone Parking: Underground, Garage, More Than One, Private Utilities: Electricity, Drinkable Water, Telephone Category: Golf, Holiday Homes, Investment, Luxury, Resale |
Please fill in the form below to receive more information about this new development. (* are required fields)
You can also contact the office by e-mail or phone:
+34 952 830 378 / +34 677 670 480
Please consider to accept our privacy policy